Letterpress Coffee Shop
Concept
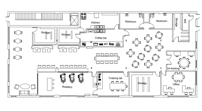
For this project, we were given an existing building and tasked to turn it into a coffee shop. A major design goal was for this to become a place where anyone feels welcome and comfortable. A place where you can socialize, get work done, study, or just sit with your thoughts. I wanted my coffee shop to feel sophisticated and elegant. I used blues and greens to make it more inviting, and marble and gold textures to elevate the space. This was done Fall semester of my sophomore year and was one of my first projects.
Renderings done in Photoshop and floorplan in Autocad.















Contact Information
taylorvstone@gmail.com
(404) 245-6016
