Tau Center
Tau Center for Behavioral Health
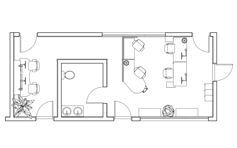
For this project, we were tasked to renovate an existing structure, the Tau Center for Behavioral Health. We met with staff from Our Lady of the Lake to learn what they were looking for in the new design and we split into teams and created multiple design solutions. I was responsible for designing the lobby, the nurse station, a small dining area, and the nurse courtyard. All of the work was done in Revit and I used Enscape to produce the renderings.








Lobby


Nurse Station








Small Dining Area




Nurse Courtyard



Contact Information
taylorvstone@gmail.com
(404) 245-6016
